标签:str https 包含 方向 string arp 从后往前 upload namespace
为了准备一个独特的颁奖典礼,组织者在会场的一片矩形区域(可看做是平面直角坐标系的第一象限)铺上一些矩形地毯。一共有 n 张地毯,编号从 1 到n 。现在将这些地毯按照编号从小到大的顺序平行于坐标轴先后铺设,后铺的地毯覆盖在前面已经铺好的地毯之上。
地毯铺设完成后,组织者想知道覆盖地面某个点的最上面的那张地毯的编号。注意:在矩形地毯边界和四个顶点上的点也算被地毯覆盖。
输入文件名为carpet.in 。
输入共n+2 行。
第一行,一个整数n ,表示总共有 n 张地毯。
接下来的n 行中,第 i+1 行表示编号i 的地毯的信息,包含四个正整数 a ,b ,g ,k ,每两个整数之间用一个空格隔开,分别表示铺设地毯的左下角的坐标(a ,b )以及地毯在x轴和y 轴方向的长度。
第n+2 行包含两个正整数 x 和y,表示所求的地面的点的坐标(x ,y)。
输出格式:输出文件名为carpet.out 。
输出共1 行,一个整数,表示所求的地毯的编号;若此处没有被地毯覆盖则输出-1 。
3 1 0 2 3 0 2 3 3 2 1 3 3 2 2
3
3 1 0 2 3 0 2 3 3 2 1 3 3 4 5
-1
【样例解释1】
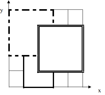
如下图,1 号地毯用实线表示,2 号地毯用虚线表示,3 号用双实线表示,覆盖点(2,2)的最上面一张地毯是 3 号地毯。

【数据范围】
对于30% 的数据,有 n ≤2 ;
对于50% 的数据,0 ≤a, b, g, k≤100;
对于100%的数据,有 0 ≤n ≤10,000 ,0≤a, b, g, k ≤100,000。
noip2011提高组day1第1题
因为最后铺上的会覆盖前面的
所以从后往前找
只要找到合适的就是答案
1 #include<iostream> 2 #include<cstdio> 3 #include<cstring> 4 using namespace std; 5 const int MAXN=100001; 6 int n; 7 int a[MAXN]; 8 int b[MAXN]; 9 int x[MAXN]; 10 int y[MAXN]; 11 int main() 12 { 13 scanf("%d",&n); 14 for(int i=1;i<=n;i++) 15 { 16 scanf("%d%d%d%d",&a[i],&b[i],&x[i],&y[i]); 17 } 18 int wx,wy; 19 scanf("%d%d",&wx,&wy); 20 for(int i=n;i>=1;i--) 21 { 22 if(a[i]<=wx&&a[i]+x[i]>=wx&&b[i]<=wy&&b[i]+y[i]>=wy) 23 { 24 printf("%d",i); 25 return 0; 26 } 27 } 28 printf("-1"); 29 return 0; 30 }
标签:str https 包含 方向 string arp 从后往前 upload namespace
原文地址:http://www.cnblogs.com/zwfymqz/p/6818743.html